Пожалуй, очень важное качество домкрата, сделанного своими руками, – это обеспечение должного уровня безопасности. Разновидностей инструментов для подъемов грузов очень много. Но на самом деле, они практически всегда отличаются относительной простотой. Связано это с тем, что надежность – важнейшее качество подъемного механизма. А чем он проще устроен, тем лучше работает.
Виды и сравнительные характеристики
Наверное, у каждого хорошего хозяина есть в наборе инструмента домкрат. А те, кому часто приходится поднимать грузы, ремонтировать автомобиль, менять колеса, знают, что, по технике безопасности, необходимо ставить несколько единиц подъемного инструмента для страховки.
Конечно, в качестве запасного варианта может применяться обычный твердый предмет. Например, всем знакомо подкладывание кирпичей. Но такой кустарный подход попросту не может внушать должной уверенности. Поэтому иногда можно подойти к вопросу безопасности основательнее и сделать для гаража самодельный домкрат. Тем более никаких особых сложностей эта работа не предполагает.
Сегодня популярны такие виды:
- винтовые;
- реечные;
- пневматические;
- гидравлические.
У каждого вида домкрата есть собственные преимущества и недостатки. Какие-то проще в устройстве (следовательно, их легче собрать своими руками), какие-то считаются самыми надежными и мощными.


Винтовые
Устройство винтового домкрата максимально простое и проверенное временем. По этой причине эти виды считаются самыми распространенными. Часто именно такими домкратами комплектуются стандартные наборы автомобилиста.
Но, несмотря на то, что они просты в сборке, воспроизвести механизм самостоятельно будет очень сложно, потому что потребуется повторить особый рисунок резьбы, которая наносится на подъемный рычаг и упор. Зубьям задается трапециевидная форма по таким причинам:
- такая резьба обладает функцией самозатухания (не раскручивается под действием груза);
- передающее усилие многократно увеличивается (ограничения использования: от 500 килограммов до 10 тонн), что обеспечивает простоту в эксплуатации.
Такие подъемные инструменты стоят не дороже остальных аналогов, поэтому большого смысла в создании самодельного винтового домкрата нет.


Реечные
Реечные конструкции используются преимущественно для подъема грузов на большую высоту. В них также оптимально рассчитано усилие.
Механизм также достаточно сложен. Технологичность заключается в том, что рычаг постепенно приводит в движение шестерню, которая движется по вертикальной рейке со специальными стопорными отверстиями.
Сделать реечную конструкцию своими руками сложно.


Пневматические
Пневматические или бутылочные домкраты работают по принципу перекачивания сжатого воздуха в специальную емкость, которая выдавливает шток и поднимает груз. У таких моделей хорошая грузоподъемность, а запас хода ограничивается лишь длиной подъемной рейки.
Сделать самодельную пневматическую конструкцию можно, купив только основной механизм со сжатым воздухом. А рычаги и дополнительные детали (колеса, упоры) вполне по силам сделать своими руками, предварительно все рассчитав.


Гидравлические
Пожалуй, самым оптимальным вариантом подъемного механизма, сделанного своими руками, можно назвать гидравлический. Как правило, конструкция подразумевает создание подкатного механизма на колесиках и легкость при подъеме.
Принцип работы гидравлического домкрата такой же, как у пневматического. Только поднимает шток не сжатый воздух, а масло, имеющее низкий коэффициент сжатия. По этой причине гидравлические домкраты применяются в профессиональных автомастерских (некоторые модели способны поднимать груз до 20 тонн).
И, конечно, если воспроизвести конструкцию в собственном гараже, то получится полезный и незаменимый инструмент.
Приобретается емкость с маслом и рычаг для работы. А все остальные элементы проектируются по мере необходимости.


Как сделать домкрат для гаража своими руками
Среди большого количества схем домашних самодельных устройств популярностью пользуются винтовой и гидравлический механизмы. И если в первом случае потребуются отличные навыки в нарезании резьбы (делается сложной формы), то гидравлический вариант сделать проще.
Построение схемы
Гидравлический самодельный домкрат отлично подходит для самостоятельного использования. А в его способности обеспечить безопасность сомневаться не приходится, потому что масло не может неожиданно потерять свойства и сорваться с удерживаемого уровня. Поэтому при работе важно обратить внимание, пожалуй, только на крепость рычагов и их надежность.


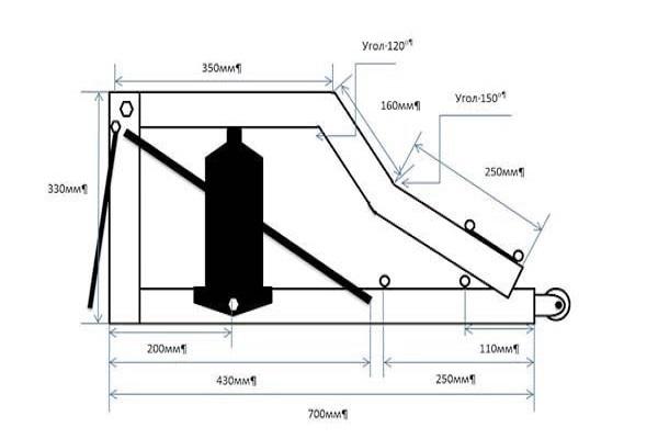
Популярная схема самодельного гидравлического домкрата
Выбор материала и подготовка инструментов
В самодельной конструкции важно позаботиться о прочности. Поэтому в качестве строительного материала выбирается металл. Для каркаса используют:
- швеллер 10 миллиметров;
- швеллер 12;
- пруты 12 миллиметров;
- колесики для перемещения;
- резиновая часть для устройства чашки;
- крепежный материал.
Для подгонки материала потребуется:
- сварочный аппарат;
- болгарка с кругами для резки металла и шлифовки;
- сверла по металлу;
- гаечные ключи и отвертки;
- мерный инструмент: рулетка, линейка, маркер.


Несущая часть закрепляется с помощью сварки, чтобы получилась капитальная и крепкая конструкция. Верхние поворотные детали крепятся на болты или прут.
Сбор конструкции
Сначала создается Г-образное основание из швеллера 12 миллиметров. К нему крепится гидравлический бутылочный домкрат. После, с помощью болтов, к основанию крепится верхняя губа, на которую будет воздействовать шток домкрата. Шток закрепляется с помощью поворотного прута.
Дополнительным оборудованием при изготовлении служат колесики (подойдут от старой бытовой техники). Они помогут перемещать габаритную конструкцию по гаражу.


Пример самодельного гидравлического домкрата
Проверяем правильность работы
Разумеется, после окончания сборки важно проверить получившийся самодельный домкрат в «боевых условиях». Гидравлика рассчитана для подъема даже тяжелого автомобиля. Поэтому проверяем работу под грузом. Лучше всего подойдет машина. Кстати, испытания покажут недоработки и ошибки конструкции.
И только после проверки (даже неоднократной) самодельный домкрат готов к работе полноценно.


Особенности эксплуатации самодельного домкрата
За работу самоделки отвечает тот человек, который ее делал. Поэтому, сколько бы ни было уверенности, что самодельный домкрат выдержит вес, используем страховку дополнительным домкратом, если работаем под автомобилем.
Но это правило распространяется даже на покупную модель, потому что давно известно: техника безопасности пишется на основе ошибок. К сожалению, часто смертельных.