Еще 15 лет назад не приходилось выбирать, из чего делать гараж. Какой материал удалось достать, тот и пойдет на стены. Сейчас же появились разнообразные технологии, которые делают строительство недорогим и сравнительно простым занятием. Один из таких способов построить гараж — использовать каркасную технологию.
Каркасный гараж легкий, простой, который не требует больших затрат. При должной сноровке построить каркасный гараж можно за неделю (такие случаи описаны в интернете). Главное — выбрать удобное место: площадка должна быть открытой, чтобы было возможным подойти к ней со всех сторон.
Преимущества и недостатки каркасных гаражей
Перечислим плюсы постройки:
- низкая цена (если сравнивать с кирпичом);
- легкость деталей (можно собрать гараж вдвоем);
- быстрота сборки;
- прочность конструкции.
Есть и очевидный минус — древесину необходимо утеплять и гидроизолировать, делать так называемый «пирог». А до этого узнать его устройство, сравнить разные варианты и выбрать оптимальный, дабы не потратить материалы зря.
Недостатком является и горючесть материала каркаса. Поэтому деревянный каркас пропитывают антисептиком. Снаружи и изнутри желательно его обшивать стройматериалами, которые не горят. А выбирая утеплитель, остановиться на негорючей каменной вате.
Этапы строительства каркасного гаража
Каркасник требует небольших усилий, нет необходимости в большой бригаде. Достаточно вас и помощника. Инструментов, которые понадобятся, будет не так уж много: как минимум лопаты, молотки, уровень. Для мусора нужны мешки. Работать лучше в перчатках.


Для фундамента нужна будет опалубка, можно взять у кого-то готовую, можно — изготовить из досок и саморезов самостоятельно.
Строительным материалом послужит дерево: нужны будут брусья «сотка» и «пятидесятка». Однако для каркаса можно выбрать и металлическую профильную трубу. Для фундамента необходим раствор бетона.
Перечислим этапы создания каркасника:
- Расчистка места под гараж, создание подушки из гравия.
- Установка фундамента — монолитной плиты.
- Установка каркаса.
- Изготовление крыши.
- Навешивание ворот.
Предварительным этапом будет создание чертежа и определение всех размеров будущей постройки. Варианты чертежей есть в конце статьи.
Фундамент каркасного гаража
Из-за того, что на фундамент будут давить не только стены, но и вес двух машин, лучше в качестве него залить хорошую монолитную плиту. При этом понадобится:
- опалубка;
- сетка из арматуры для фундамента;
- цемент;
- сухой строительный песок и вода;
- гравий.
Перед заливкой необходимо выкопать траншею, разместить опалубку в ней. А внутри будущей плиты — сетку из арматуры для фундамента. Бетон замешивается по данным из таблицы ниже.


Следующие работы должны быть только после окончательного высыхание плиты. Если на улице очень жарко, плиту после заливки следует поливать водой.
Установка каркаса
Пока бетон сохнет, необходимо выбрать, какой каркас для гаража вы будет изготавливать. Как минимум есть два варианта:
- из дерева;
- из профильной трубы.
Первый вариант считается более экологичным, но и более дорогим. Профильная труба дешевле, но не так приятна в работе как дерево. В общем, выбор только за владельцем постройки.
Если вы выбрали дерево, обработайте его перед монтажом антисептиком. Нижняя обвязка собирается из бруса 100 на 50, соединения делаются в каждом углу с помощью врубки и шпонок. Угловые стойки и стойки для укрепления ворот нужно делать из «соточки». На нижний брус устанавливаются промежуточные стойки, которые крепятся при помощи нагелей. Расстояние между стойками обвязки — 1200-1500 мм. На углах также нужны подкосы, которые придадут прочность каркасу. Каркас завершает верхняя обвязка.
Если каркас из профильной трубы, то не обойтись без сварки. Также нижняя обвязка делается из более мелкой в сечении трубы 40 на 20, углы и стойки ворот — из трубы 40 на 40. Обычно работа по возведению каркаса не превышает трех-четырех дней.
Кровля для каркасного гаража на две машины
Устройство кровли необходимо производить по всем правилам, чтобы крыша выдержала снеговую нагрузку. Для гаража на две машины лучше соорудить каркас двухскатного типа с одинаковыми скатами.
Сначала с ровным шагом делают стропильную систему, для которой берут доски 100 на 50 и 100 на 25, а также соединительные элементы. Если крыша очень широкая, то необходимо установить больше распирающих балок, чтобы нагрузка была равномерной. Фиксирует кровлю конек.
Далее изготовляется обрешетка. Для гаража можно брать любой легкий материал:
- шифер;
- профнастил;
- металлическую черепицу;
- битумный лист.
На свес ставится водосток. В проем для въезда — ворота необходимого размера. Для каркасника лучше выбрать не распашные, а рольворота. Они значительно легче, хорошо вписываются в дизайн здания и не будут перекашиваться при небольшом проседании конструкции, если место для гаража было выбрано не очень удачное.
Процесс изготовления каркаса для гаража на две машины можно посмотреть на этом видео. Только учтите, что на записи каркасный гараж строится без установки фундамента (временная сборка).
Отделка и изоляция гаража
Далее проводятся работы по облицовке, утеплению и гидроизоляции гаража. Для облицовки можно использовать различные материалы:
- евровагонку;
- сайдинг;
- профлист и др.
Для утепления можно использовать любой материал из предложенных на строительном рынке. Но предпочтение желательно отдать негорючей минвате.
При сооружении «пирога» стен гаража можно использовать многие из вариантов, найденных в интернете. Ведь это нежилое помещение. Но есть два основных правила, которые сэкономят вам массу времени при сравнении всех конструкций.
- Пароизоляция устанавливается внутри помещения (с теплой стороны).
- Ветрозащита и гидроизоляция — снаружи. Она будет спасать каркас гаража во время непогоды.
Правила касаются как устройства стен, так и крыши постройки. Вообще, слои утепления гаража обычно выглядят таким образом (с внешней стороны):
- внешняя отделка;
- ветрозащита;
- плита типа ОСП (OSB);
- утеплитель;
- пароизоляция;
- слой для внутренней отделки, например, гипсокартон.


Этот вариант указан на фото. Могут быть иные способы сборки. Например, «пирог» без ОСП, которая нужна, чтобы утеплитель не отсыревал. Либо без ветрозащиты.
Проекты гаражей на две машины
Гараж на две машины обычно строится на своем участке, поэтому нелишним будет расположить в этом здании террасу, мастерскую или другое техническое помещение. Предлагаем несколько проектов гаражей, которые изготовлены из деревянных панелей на каркасе.


Первый проект — помещение с гаражом на две машины с небольшой мастерской в 17,5 м2, которую можно использовать для столярных или слесарных дел, либо для хранения важных инструментов. По плану в мастерской не предусмотрено окно, если оно необходимо, следует его добавить в чертеж. Справа от входа в гараж предлагается построить узкую террасу с размерами 1,7 на 7 метров.


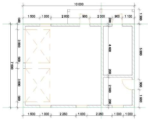
Второй проект — гараж на две машины, за перегородкой которого находятся еще два подсобных помещения для хранения инструментов, сменных колес, емкостей с маслом. Если вам эти комнатки не нужны, вы можете удалить их из плана, получив чертеж гаража на два автомобиля без дополнительных зон.
Заключительный вопрос, волнующий автовладельцев — будущих строителей каркасного гаража. Это цена. На ремонтных порталах просчитана минимальная стоимость конструкции на 2017 г. На каркас гаража уйдет минимум 35 тысяч рублей. На двойные рольворота с электроподъемником — минимум 100 тысяч. Еще несколько десятков тысяч пойдет на «пирог» стен: на сайдинг, утеплитель, гипсокартон, ветрозащиту.
Строители в интернете рассчитывают, что построить каркасный гараж на две машины (особенно используя каркас из древесины) стоит дороже, чем возвести аналогичную по размерам конструкцию, но из пенобетона. Так как пенобетон не надо дополнительно утеплять, обшивать и гидроизолировать.
Зато с каркасным гаражом можно сэкономить на рабочих руках, для его возведения не понадобится бригада. Достаточно одного руководителя (вас) и одного подсобного рабочего (вашего товарища).